gupta residence plan 06/21/2021



gupta residence plan options 06/09/2021
OPTION 1



OPTION 2



OPTION 3



BUILDING MASSING OPTIONS
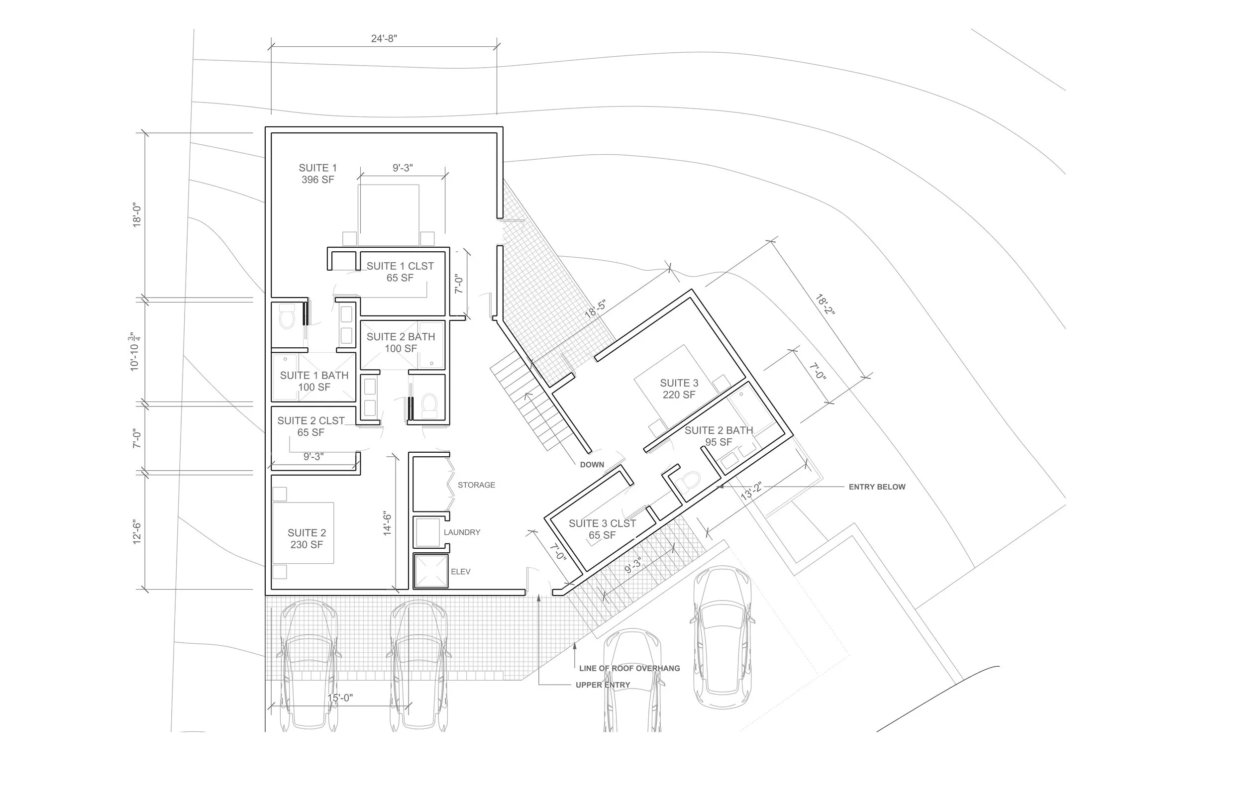
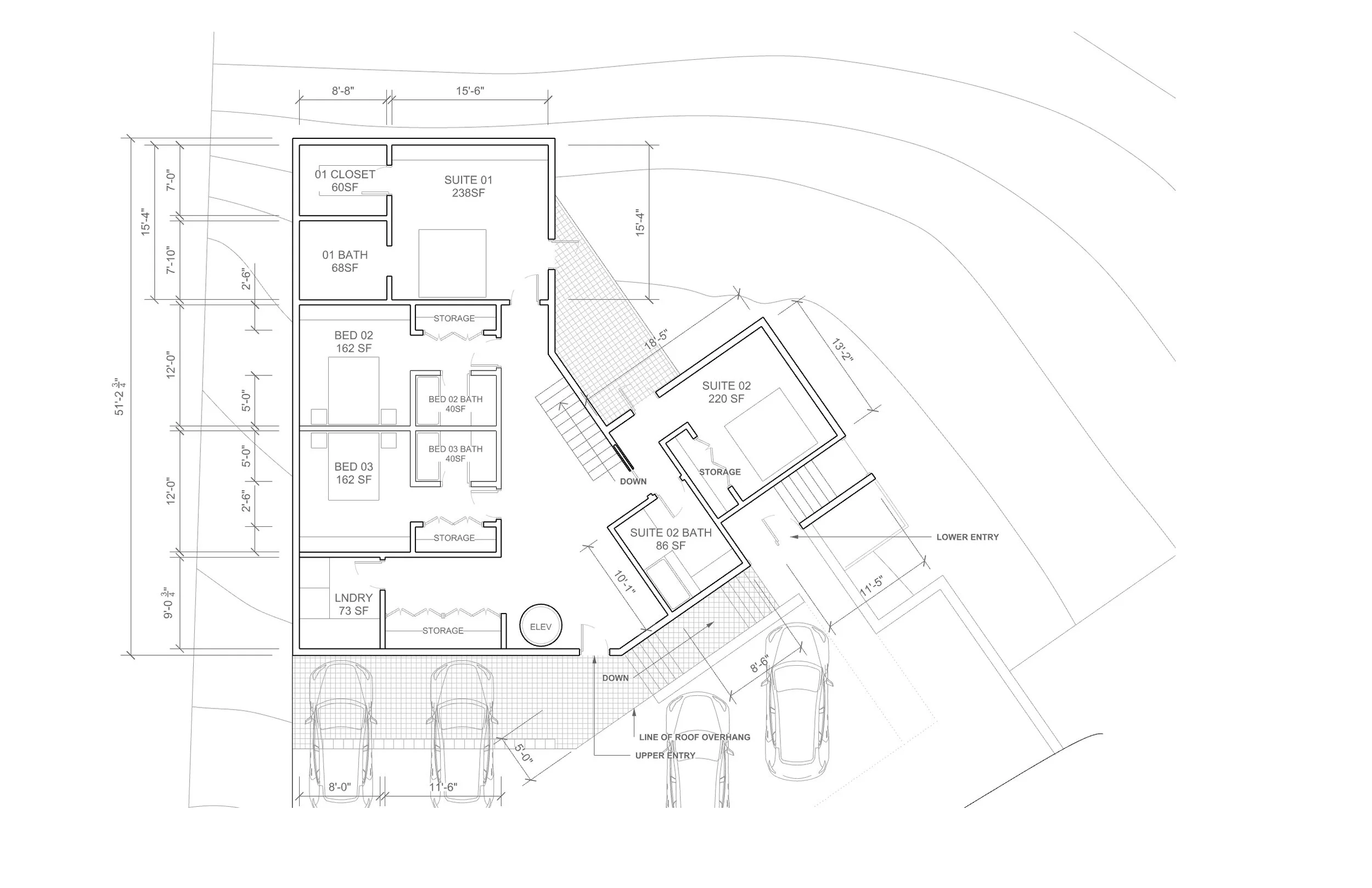
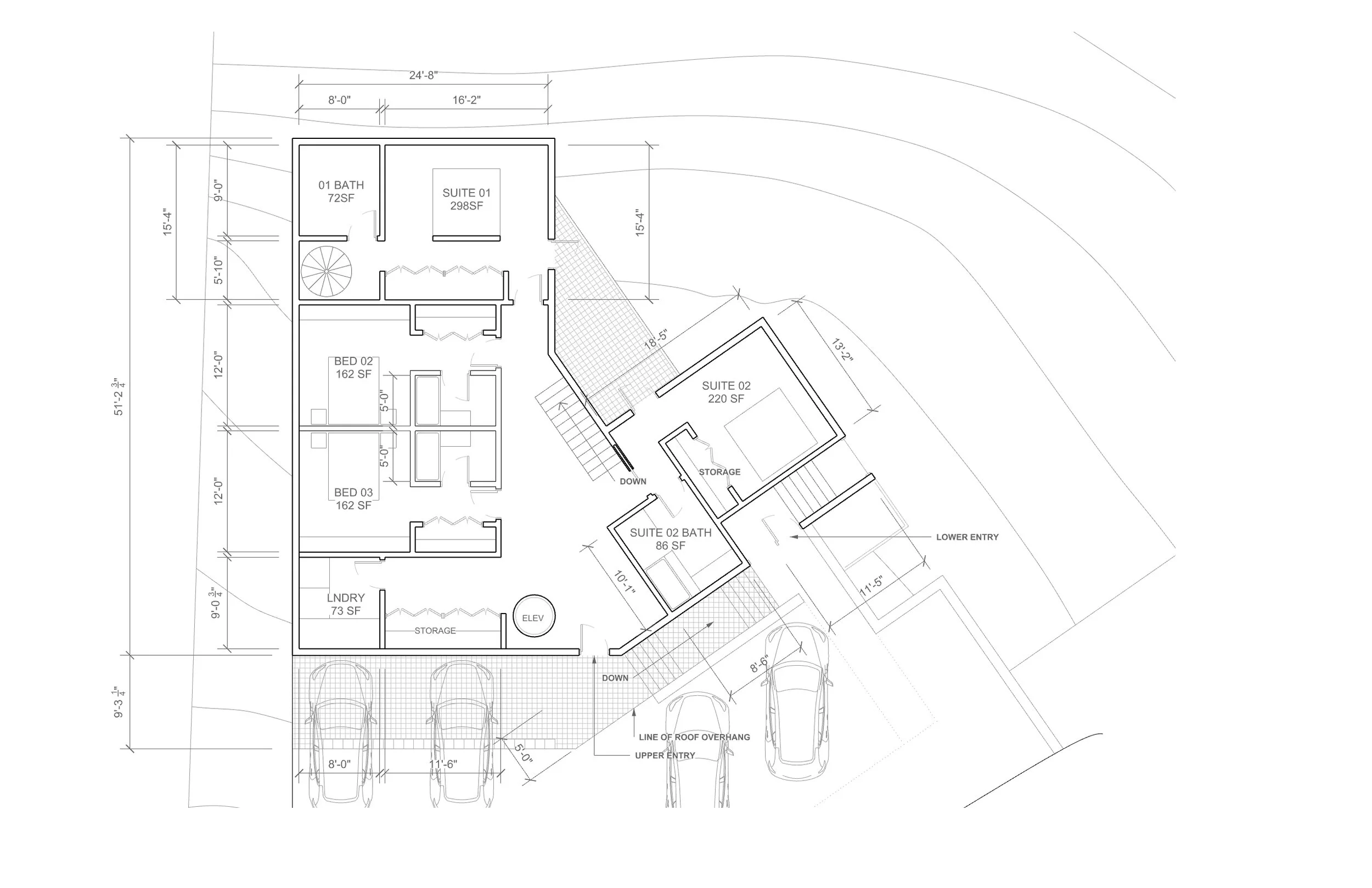
STREET LEVEL SLEEPING PLAN
We should be able to take further advantage of the space between the driveway and the property line
For head-in parking the cars will actually be under the roof
PREVIOUS







PREVIOUS








april 27, 2021






OPTION 1










OPTION 2




April 19,2021












BUILDING SIZE
GROUND FLOOR: 2610 SF GROSS
SECOND FLOOR: 2310 SF GROSS INTERIOR
SECOND FLOOR TERRACES: 221 SF
LOT COVERAGE
3920 SF
PREVIOUSLY PRESENTED
With initial research of the site we can get an understanding of the parcel plan, property lines, soil composition, environmental restrictions (I don’t see any) and zoning.
ZONING INFO
ZONING: R-10
LOT SIZE: 04026082
NEIGHBORHOOD 503035
LEGAL: LT 8 WOODMONT COURTH 10900 SQ FT
PARCEL ID: 04026082
site strategy 1





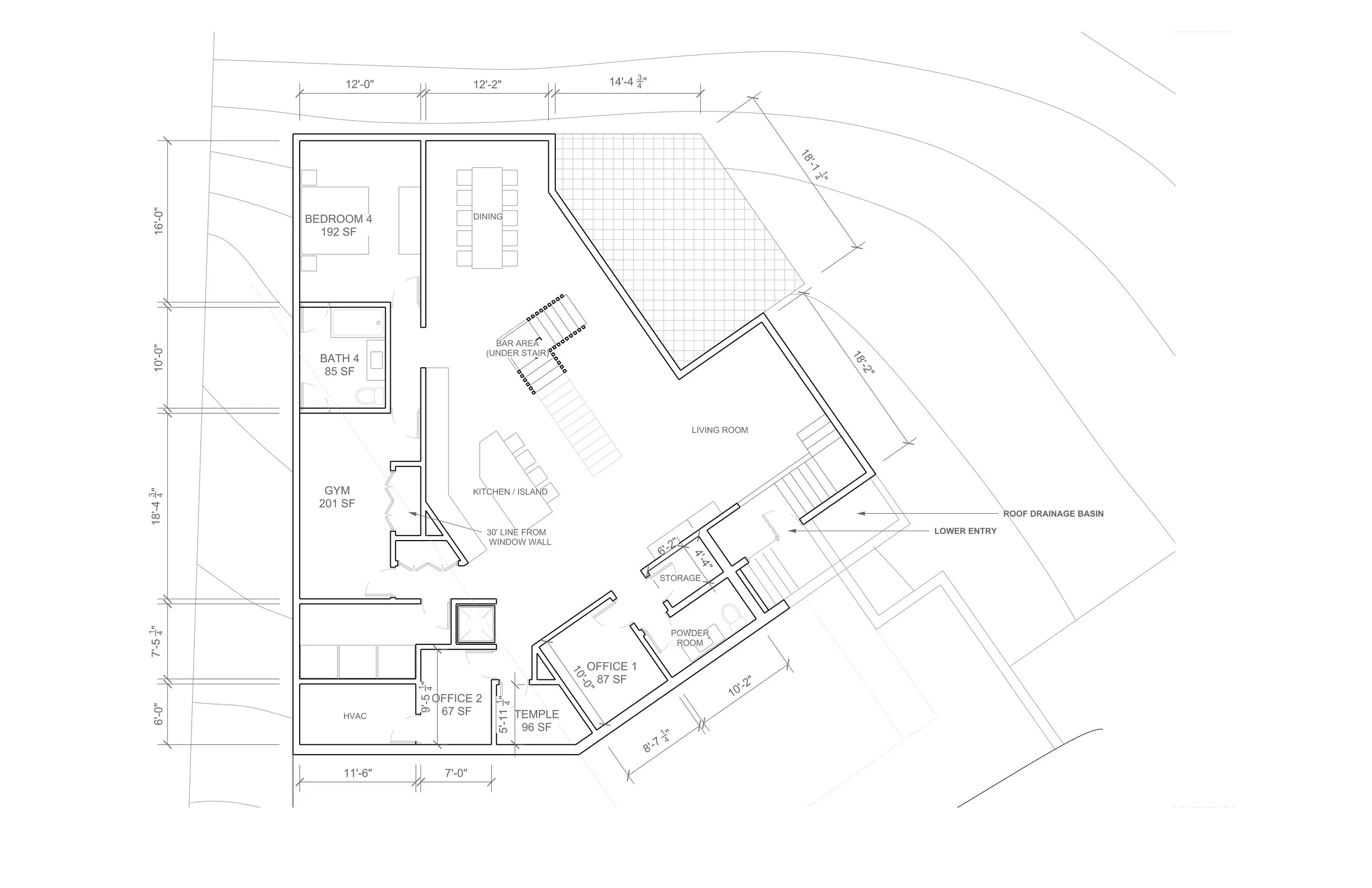
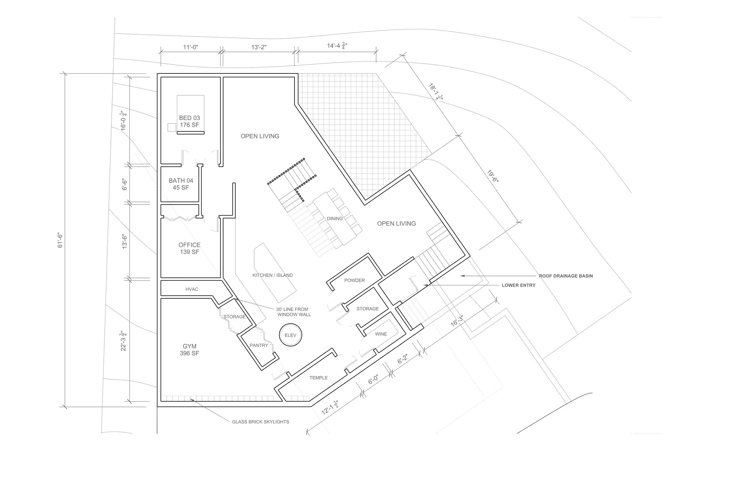
The preferred site strategy to date intends to marry the topography of the site with the idea of having 2 separate wings of the home, each ending in it’s own 2-level suite. In this case we push the building to the extents of the set-back lines on either side of the site. From there we carve out the first floor and anchor it back into the hill. The second floor engages the driveway and main entry above. The massing is essentially two bars that hug the set-back lines. The space between these two bars becomes the common space and they fan away from each other to create a common outdoor terrace/courtyard which opens to the West. This will allow nice sunlight to the area in the afternoon and early evening hours.
This animation shows the massing for strategy 1 as it sits on the site. You can see how the building anchors into the hill and how the suites project out over the hill. The building creates a protected outdoor living room between the two bars. You can also see in this video how the building might be very unassuming from the street-side and would really open up visually to the hill.





These images aren’t to be taken literally but are still very diagrammatic. They show how entry might work on the second floor. Without getting to far ahead of ourselves, the massing and building would imply an inconspicuous and opaque treatment on the street side and facing both of lots on either side. The building could open up to the courtyard.
BUILDING SIZE:
Ground Floor: 2675 sf gross
Second Floor: 2370 sf gross
Total: 5045sf
LOT COVERAGE
Current scheme: 3,729 sf
Allowable : 3920 sf (with 60sf front porch), 3500sf (without)
Total: 5045sf
ALTERNATE MASSING OPTIONS




